規矩術

この先も規矩術を
次世代に伝え
日本建築の良さを
未来に繋げたい

規矩術とは?

規矩術(きくじゅつ)とは、指矩(さしがね)や直定規などの道具を使い、あらゆる角度や寸法を正確に割り出す伝統技法のことです。大工の世界における実用幾何学であり、社寺建築の複雑な屋根勾配や木組みの角度を計算するための秘伝の知恵です。さしがね一本で高度な墨付け(設計図なしに材に直接図を描くこと)を行うこの技は、古くは飛鳥時代に聖徳太子が伝えたとも言われ、江戸時代に理論体系が整えられました。
田子式規矩法と称される独自の規矩術は、初代・田子富蔵から現代の六代目・田子和則棟梁まで脈々と受け継がれてきました。地元職業訓練校で指導し、宮大工古式伝統保存会を立ち上げて後進の育成に努めるなど、規矩術を含む伝統大工技術の継承を願っています。

職業訓練校での指導
職業訓練校での指導
授業風景
授業風景
株式会社番匠 執務室にて
株式会社番匠 執務室にて

規矩術は大工の命

さしがねは、千年以上も前に聖徳太子が日本に伝えたとも言われています。そのさしがねを利用して、あらゆる社寺・数寄屋建築の構造・意匠・木割を性格に求め墨付けをする技、たとえ住宅建築に対しても必要不可欠な技であり、日本伝統の技法であります。まさに規矩術は「大工の命」と言っても過言でありません。どんなにコンピューターや機械が発展しようが、千年以上続いた「さしがね」は無くなるはずがなく、また無くしてはならない技であります。
大工にとって規矩術(さしがね使い)は大切であり、棟梁として一番大事な道具であると共に、規矩術は身につけなくてはならない伝統技術だと思っています。

さしがねを持つ聖徳太子
さしがねを持つ聖徳太子

規矩術講座

田子式規矩法大和流六代目として、私が学んできました規矩術=さしがねの使い方を何回かに分けてご説明して参ります。

第1回 未来に伝えたいさしがねの技

規矩術とは我々の祖神が努力と苦労を重ね創り上げた、建築設計・工作には切り離せない技術です。 『さしがね(指金・指矩)』=まがりじゃく(曲尺・曲金)・つぼかね(壺矩)・かねじゃく(矩尺)・すみがね(墨矩)・ばんしょうがね(番匠矩)等いろいろ呼び名はありますが、一般的にはさしがね(指矩)と呼んでいるようです。= 規矩術とは主にそのさしがねを使いあらゆる角度を簡単に正確に出す技と心得て頂ければ良いと思います。

『さしがね』は、千年以上も前に聖徳太子が日本に伝えたとも言われています。
そのさしがねを利用して、あらゆる社寺・数奇屋建築の構造・意匠・木割を正確に求め墨付けをする技、たとえ一般住宅建築に対しても必要不可欠な技であり、日本伝統の技法であると私は思います。まさに規矩術は大工の命と言っても過言ではないと考えます。それが証拠に、どんなにコンピュータや機械が発展しようが、千年以上続いた『さしがね』は無くなるはずはありませんし、また無くしてはならないと思います。また、このさしがねを使いこなす規矩術については絶対に伝承しなくてはならない技術であると思います。

規矩術には色々な技法が有り、小平起こしによる規矩、算定法による規矩、勾・殳・玄(こう・こ・げん)法による規矩、切断法による規矩、楕円法による規矩、等色々な求め方が有ります。
これらを熟知したうえで、実際の木組みの材料に大工が木の癖を良く理解した上で、規矩術を使いながらさしがねで墨をつけて行く。時には材料が1本数十万、数百万する場合があります。机の上で勉強していても経験と実績があっても、墨を任された棟梁が口に出せない緊張感の下、墨を材に直接つけて行きます。机の上では間違っても消しゴムで修正が効きますが、実際の材の上では責任と経済的損失が生じてきます。そして信用も失ってしまいます。だからこそ心配な場合は10分の1の模型まで造り検証して墨をつけて行く。そのくらい大工にとって規矩術(さしがね使い)が大切であり、棟梁として一番大事な道具であると共に、規矩術は身につけなくてはならない伝統的技術と思っております。

私の父、5代目棟梁田子光一郎はこの大工の命である規矩術を職人の人生をかけて勉強し、田子家に代々伝わる書物を勉強し、なおかつ諸先輩が苦労の上書かれた書物も解読して、実際の大工さんたちに更にわかりやすく便利に使える、さしがね(規矩術)はないかと家庭もかえりみず昭和36年に考案したのが田子式さしがねであります。

父(光一郎)は家庭も顧みず大工の命である規矩術を勉強して極めた人であると私は思っております。そんな父が兄弟でも一番出来の悪い私に規矩術を教えて下さり、なお且つ父が名づけた田子式規矩法大和流六代目を私に襲名させてくれた理由が少しわかるような気がいたします。その父も平成23年8月18日享年95歳でこの世を去りました。今考えますに、私も父の歩んできた道を追いかけるように、訓練校の指導員から始まり校長になって合わせて24年、父と共に群馬県の建築大工職種・技能検定委員も20年間続けております。しかしながら、千年も培ってきた日本の伝統規矩術を、現在の大工さんは一部の方を除いて勉強する方が少なくなっているようです。田子家の秘法として父が残してくれた考え方を少しでも多くの大工さんに限らず建築に携わるご縁のある方たちに、さらに自分も勉強を続けながら残していきたいと考えております。

田子式規矩法大和流六代目
棟梁 田子和則
月刊住宅ジャーナル 2015年12月号(VOL85)に掲載

第2回 未来に伝えたいさしがねの技

さしがねは、昔は尺目盛りで出来ていました。現在、多くはセンチ目盛りのさしがねを使用しているようですが、昔からの尺は良くできており、さしがね(規矩術)の使い方を勉強するには、尺ほど理解し易い単位は無いと思っております。放送作家、作詞家の永六輔先生も、尺ほど使いやすくこれに勝るものはないと尺・鯨尺の便利さを良く理解され、伝統的な業種において尺貫法の例外的使用を認めさせてくださいました。

さしがねの長さや形状は、現在のセンチ表示のさしがねについても、昔の尺表示のさしがねの長手、短手の長さを基に出来ております。様々な理由から、規矩術を勉強するには尺で勉強した方が分かり易く、昔から伝わってきた、さしがねの使い方(規矩術)が良く理解できると思います。さしがね(規矩術)の理論をよく理解できましたら、センチ表示のさしがねにもそのまま応用できますので、若い人にはしばらく大変とは思いますが、尺での説明で理解していただきたく、最初にお願いしておきます。
これから数回にわたり、私の知識としてのさしがね(規矩術)について述べさせていただきます。知れば知るほどに、さしがねの凄み、また日本伝統の規矩術が如何に素晴らしいものであるか、そのことを昔の技術者特に大工さんが理解し使いこなしていたことが、分かっていただけると思います。

まず、さしがねの形状についてご説明します。(図1) さしがねの長い部分(長手)は1尺6寸5分=約50cmまで目盛りが刻まれています。 この長さは、関東間(6尺)、本間(6尺2寸)、関西間(6尺5寸)の4分の1(四ツ割:間柱の位置)の長さを基準として定められています。  短い部分(短手)を8寸=約24cmとしていますのは、707(7寸7厘)=裏目の5寸を測れるのと、道具箱に収まることや現場での使い勝手の良さなどから、この長さに作られています。

図1の棒隅直投げ目盛についてや図2・3の「財」「病」…その他の目盛につきましては次回ご説明いたします。

田子式規矩法大和流六代目
棟梁 田子和則
月刊住宅ジャーナル 2016年1月号(VOL86)に掲載

第3回 未来に伝えたいさしがねの技

先ず、さしがねの目盛は昔からどのようにできているかをご説明したいと思います。第2回目では、さしがねの形状(長手、短手)がどのように決められたのか、そしてさしがねの裏目が表目の√2(1.41421356)倍に刻まれていること。これは、日本建築が90度(直角)と45度の隅木の形状が多く取り入れられていることからであり、これを裏目として目盛った先人の知恵に感謝いたしたいと存じます。また、丸目尺についてもご説明申し上げました。
今回は、穴目尺、唐尺(縁起尺)、田子式さしがねに刻まれている直投げ目盛、向う留め目盛、棒隅の配付け目盛(垂木の配付け角度)などについてご説明いたします。規矩術を勉強する前に、さしがねの目盛について理解することが大切ですので、それぞれの目盛の役割、利用方法を良く理解しておいてください。

穴目尺とは、長手の先端に刻まれており、ほぞ穴の深さを測る場合等に使用します。
唐尺(縁起尺)は昔、吉凶判断に用いられていたもので、さしがねによっては1尺2寸を八つ割にしたものと9寸6分を八つ割にしたものがあるようで、財・病・離・義・官・劫・害・吉の文字が刻まれています。昔は門戸の寸法を決めるとき等に財・義・官・吉の吉寸を使用したとの文献も残っているようです。次に、直投げ目盛、向う留め目盛、棒隅の配付け目盛の使用方法については図1~図3にさしがねの当て方として説明しています。詳細につきましては、次回以降の規矩術のご説明の中で詳しく述べさせていただくつもりです。

今回3回目までさしがねの由来、目盛の使用法についてご理解いただくために説明申し上げましたが、次回から規矩図とさしがねの使い方について、実践に入りたいと思います。

田子式規矩法大和流六代目
棟梁 田子和則
月刊住宅ジャーナル 2016年2月号(VOL87)に掲載

第4回 未来に伝えたいさしがねの技

過去3回にわたり、先人がどのように規矩に必要な目盛をさしがねに目盛ったかを、田子式さしがねを中心にご説明申し上げましたが、お分かりいただけたでしょうか。
さて、これから基本規矩術の説明に入りたいと思います。 規矩術には前段に申し上げましたが、原寸図法による規矩、小平起こし規矩、算定法による規矩、勾・殳・玄法による規矩、切断法による規矩、楕円法による規矩など色々ありますが、制作現場に応じて適切な方法を活用していただくことになります。規矩術を勉強した流派によっても求め方が多少違いますが、誰もが理解し易く理論的に簡単かつ正確な方法を選ぶのが好ましいと思います。

規矩術を勉強し、さしがねを使って必要とされる角度を求めるにあたっては、さしがねが直角にできていることから、三角関数をご理解いただくことが大切になります。そして何より大切なことは、どんな角度、どんな複雑な小屋組みにしても、難しい組手を見るのではなく、平面にきちんと正確に形成することが基本となります。そして、基本となる勾配がどこを基準に決められているかを読み取り、水平、垂直を正確に求め展開図を書くことが大切です。
それらを規矩術の極意として伝えたのが規矩準縄(孟子の離婁上から)であります。規矩術を勉強するにあたり基本となる考え方として、一番大切な語源となりますので規矩準縄(きくじゅんじょう)について以下ご説明申し上げます。

規矩準縄(き・く・じゅん・じょう)
規矩術とは、この規矩準縄の規矩をとり、名づけられたと言われております。これから規矩術を勉強するとき、欠かせない言葉で基本となりますので、しっかりと覚えて頂きたいと思います。

≪規矩準縄の考え方の例題≫
規は円を正す(図1)
コンパスを使用して正円・楕円を用い、屋根の反り・茅負・木負い反りや隅木の反り平唐門の形成などに使用する。造作では格子天井の平亀・隅亀の割り付けなどに使用、その他色々な円を使用し正すことです。
矩は直角を正す(図2)
矩はいわば差し金(さしがね)のこと。振垂木、扇垂木など、またその他様々の直角でない角度について、さしがねを使う時に矩を正します。
準は水平を正す(図3)
昔でいう水盛・レベルのことです。
縄は垂直を正す(図3)
昔でいう振り下げ(縄に重りをつけたもの)いわば垂直のことです。

これから規矩術を勉強していただくときに、必ず規矩準縄を基本にしていただきたいと思います。
次回は、平勾配と返し勾配、その他について説明を致します。

田子式規矩法大和流六代目
棟梁 田子和則
月刊住宅ジャーナル 2016年3月号(VOL88)に掲載

第5回 未来に伝えたいさしがねの技

≪平勾配と返し勾配、矩勾配≫
規矩術の勉強を進めてまいりますと、平(ひら)勾配、返し勾配、矩(かね)勾配といった言葉がでてきます。その他にも隅(すみ)勾配、隅返し勾配や勾(こう)・殳(こ)・玄(げん)の名称を使った文言がいろいろと出てまいります。これらの名称についても良く理解しておいて頂く必要があります。例えば中勾(ちゅうこう)の勾配とか、短玄(たんげん)の勾配といったような言葉で説明することが多くなります。

・平勾配
平勾配とは、梁間(はりま)を「殳」、束(つか)立ちを「勾」として、垂木が構成する傾斜のことを言います。図1において勾が1尺となるまでは平勾配と言います。また、1尺の殳に対し勾が4寸だと4寸勾配となります。

・返し勾配
返し勾配とは矩勾配より傾斜が急である勾配です。これを返し勾配または転び勾配とも呼んでいます。また、返し勾配は図2のように4寸勾配の返し勾配とか4寸勾配の転びと言うように使われています。

・矩勾配
矩勾配は図1に示すように、梁間「殳」と束立ち「勾」が同寸1:1であり、45度の傾斜を矩勾配と呼びます。 束立ちが1以上を返し勾配、1以下を平勾配とご理解ください。

・隅勾配
棒隅の場合には、図3のように2つの平勾配が45度に交わって四角い隅を作る時、この稜線が隅勾配となります。また、平勾配と隅勾配の関係は図4のようになります。
次に、さしがねによって平勾配、返し勾配を求める方法として、例えば4寸勾配の平勾配や、その返し勾配の墨付けを行う場合のさしがねの当て方を図5に示します。

 また、ご参考までに、以下に勾・殳・玄の各部寸法の説明とその求め方を掲載いたします。

田子式規矩法大和流六代目
棟梁 田子和則
月刊住宅ジャーナル 2016年5月号(VOL90)に掲載

第6回 未来に伝えたいさしがねの技

前回は、平勾配と返し勾配、矩勾配、隅勾配を説明し、勾・殳・玄法の平基本図、隅基本図の名称を説明し、0.5勾配から矩勾配までの勾・殳・玄換算表を添付させていただきました。殳を1.0とする表であり、尺でもセンチでもご利用いただけると思います。

これから規矩図を製作するにあたり、勾配ののびにより部材実長の正確な数値の確認、平面の部材取合い角度がそれぞれの屋根の勾配により変化する角度の確認に大変に便利な換算表であり、規矩術だけでなく、見積もりをするときの、実際に必要な部材の長さ、寸法を正確に求め、木材調書の作成や屋根の上面積や、建築工事全体に必要な施工図面の作成に換算表を役立てていただけます。
私は正確な展開図面や部材ののび寸法などは、勾・殳・玄の換算表を使い、実際の部材の墨付けには、昔から、大工さんが規矩に使用しておりました小平起し法を使い、部材の取合い角度や木取り寸法に役立てております。

小平起しを基本に、今回は勉強をしたいと思います。
最初は基本である棒隅から始めましょう。また、棒隅の論理をしっかり理解することにより、どのような角度の矩使いも出来るようになります。

◆棒隅規矩と其の論理

◆棒隅さしがね使い

田子式規矩法大和流六代目
棟梁 田子和則
月刊住宅ジャーナル 2016年5月号(VOL90)に掲載

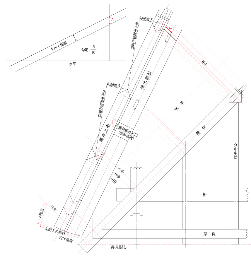
第7回 未来に伝えたいさしがねの技

 前回(第6回)では、基本となる棒隅からの勉強ということで、小平起しによる棒隅の論理についてご紹介し、隅木展開図の作図方法について説明しました。今回は束と隅木の取合いを第1図にてご説明し、第2図については投げ墨の求め方を詳しくご説明申し上げます。

≪束と隅木の取り合い(第1図)≫
イ、先ず束2面の①に垂木下端峠を定め、①から②へ平勾配を定めます。
ロ、平勾配に垂木寸法を立成に取り、垂木上端を平行に決めます。②から③に向けて矩を巻きます。
ハ、③から隅木半幅を裏目で戻り、隅木側面が束面と合う位置を隅木胴付きとし、これを三合の基点として、棒隅の場合、半勾配を引き渡します。
ニ、込栓については化粧の場合、小屋組みの場合、また本中栓を打つ場合、他色々有ります。一番栓の効き目のある所に適切に打つのが良いと思われます。

《投げ墨》
投げ墨については色々な説明がされていますが、私は単純に考え、どのような多角形の場合でも投げ角度を正しく出す方法をご説明したいと存じます。
今回は成りの大きな垂木を仮設し、それと同寸にて隅木の成りを決め、垂木を直角に切ってその角度を隅に移す。つまり、隅木に垂木の直角度がどのように変化した角度になるか、また棒隅の場合、 どのように考えたら良いかを田子流でご説明いたします。これは平勾配の屋根には必ず返し勾配の屋根が、見えないところにあるということです。そう考えたとき、答えが自ずと出てきます。
イ、作図による求め方(どのような角度でも可能)
ロ、隅勾配立水にての求め方
ハ、隅勾配水平による求め方
ニ、返し隅勾配による求め方
ホ、隅木直による直投げの求め方
ヘ、棒隅に限り、尺のさしがねで平勾配を知ってどんな勾配でも表 目と裏目の関係を知り、暗算にて直投げを算出する方法
まだ、幾つか投げ墨の求め方がありますが、これら6種類の求め 方について、第2図で説明しています。

田子式規矩法大和流六代目
棟梁 田子和則
月刊住宅ジャーナル 2016年6月号(VOL91)に掲載

第8回 未来に伝えたいさしがねの技

今回は隅木展開図の説明として、桁と隅木の組み合わせ部分につきまして、その展開図の書き方、さしがね使いの説明を致したいと思います。
隅木の上端(馬乗墨)、下端(たすき墨)の墨付けにつきましては、第1図を見て頂ければお分かり頂けると思いますので、第2図の棒隅桁組展開図の説明をさせて頂きます。

※さしがね使いにつきましては、さしがねの短手の長さ(8寸)の制限により、5寸を基準とした1/2のさしがね使いとします。

≪棒隅桁組(第2図)≫
桁組の墨をする前に化粧桁、化粧隅木であるかによって桁の組み方はその都度判断してください。化粧で見える場合は構造的なことを考えた上で見え掛かりのそれぞれの部材の木割が大切になりま す。そして、何より大切なのは桁組をするときに柱のほぞ穴、隅木の落ち掛かりの切欠き、隅木の切欠きなどを考えた上で、稔じ組、隅木追入れの渡り腮などの組手を考えて、なるべく強度を持たせた上で墨付けをすることが大切と思います。峠を上げるというのも桁の垂木の口脇の欠き込みを少なくして桁の強度を保つためです。
1.先ず上端に芯墨を打ち桁芯㋺を定め、隅木芯㋩及び隅木巾㊁に墨を引きます。
2.そして外側面に㋑の口脇墨を引き渡す。
3.隅木内側を桁外側に矩を巻き口脇線①から立つに科下Bを定め②とする。
4.②の基点から平の半勾配にて③、④、⑤の位置をそれぞれ設け る。
5.桁上端⑤から45度で⑥を設ける。
6.⑥から⑧に平の半勾配を引き渡し隅木外・内を矩に巻き⑦、⑨を定める。
7.⑩より桁木口方向に平勾配を引き渡し⑪を定め垂木下端とする。
8.⑩、⑪の平勾配線に沿い垂木成巾を取り上端を定め桁を勾配なりに削り取る。

第2図 棒隅桁組

田子式規矩法大和流六代目
棟梁田子和則
月刊住宅ジャーナル 2016年7月号(VOL92)に掲載

第9回 未来に伝えたいさしがねの技

≪棒隅軒先茅負の上端留め向こう留め墨の出し方≫
茅負上端留め向こう留めの求め方が規矩術には色々あります。
最近は1図のように勾・殳・玄法で説明しておりますが私はあまり使いません。殳を基本1とした方程式ですので、私は呼び名として使用しておりますが、基本的には展開図法、小平起こし法、木の身返し法(木幅法)等を使用しております。今回は茅負上端留めと成の角度(向こう留め)について、三種の墨の出し方を解りやすく図面解説したいと存じます。

1図は4寸勾配で勾・殳・玄法による墨の仕方と木の身返し、2図は勾配を5寸にして、良く角度の違いが解るように展開図法、小平起こし法、木の身返し(木幅法)等の方法も理論的に正しいかを説明いたします。どの手法をお使い頂いても正しい方法であり、良く理解して頂ける規矩術であります。昔は様々の手法を用いて現場に役立てたものです。数百年も前、ソロバンもなく割り算も掛算もない頃、昔の大工さんは何度も苦労に苦労を重ね規矩が生まれたと思います。今回の茅負上端留めの様々な角度の出し方が理論的に一致しており、どの手法でも正しいことが良く理解して頂けると思います。
社寺や数寄屋の場合反りやむくりが多いため1図、2図のように実際の屋根勾配の角度に実寸法で部材寸法を入れ実寸型板を制作して使用材に墨を付けております。従いまして広い原寸場が必要なわけです。特に軒先の組手、妻手破風の原寸は実寸型板に限ります。

≪第1図の説明≫
茅負、裏甲、そして鼻隠し、淀など垂木勾配なりに転ぶ上端留め及び向こう留めの展開図法と勾・殳・玄法による求め方さらに木の身返しを説明いたします。

1.上端留め、向こう留め、勾・殳・玄法
先ず4寸勾配の基尺を1尺とした基本図を書き垂木上端転びなりに茅負を乗せ上端幅4寸とし成3寸と取り転びB~B’を求めC~C’を求めB’~C’を結べば上端留めとなり勾・殳・玄法では長玄の返し勾配となり、殳と玄(のび)でも同じ角度となります。A~A’を求めB’~A’が向こう留めとなります。勾・殳・玄法では向こう留めは中勾の勾配となります。

2.木の身返し(木幅法)
B’~Dに平勾配を引き渡し茅負上端幅を平勾配なりに④と定め矩をまくとC’の点が求められます。
この図のように全てを理解したうえで昔の大工さんは木の身返し法を良く使用いたします。この場合、木取りの正確さが求められます。

第1図

≪第2図の説明≫
垂木勾配5寸なりに転ぶ茅負の展開断面図を上部に描き、茅負上端のB点~ 点より1尺基準5寸勾配の小平起こし法にて屋根の平面積と伸びの面積を作図し、型板を作り茅負上端留めと向こう留めの展開図法、小平起こし法、木の身返し法(木幅法)の角度の求め方と関連性、及び理論を理解して頂きたく、解りやすく作成いたしました。

1.茅負上端外面B点から垂直に基点B’を求める。B’~㋑に桁方向地の間1尺と取り、㋑~㋺に垂木方向1尺と取る、そして隅木地の間B’~㋺を求める、㋺から垂直に勾配5と取り㋩と定める、そして㋩~㋑を垂木実長とする(延び)。㋩~㋑の長さ(垂木実長)で垂木方向の延長線㋭を求めB’~㋭を引き渡すと隅木実長となりB’‐㋑‐㋭は屋根の伸びの面積となります。

2.従いましてB’~㋭の隅木実長線上の垂木方向に配付け垂木実寸上端幅を入れますと㋬は配付け垂木型板となり桁地の間方向線上に茅負上端幅を入れますと、㋣は茅負上端留め型板となります。そして茅負成幅を定めますとA~A’が定められB’~A’は向こう留め型板となります。

3.さらに木の身返し(木幅法)はB’~Dに5寸の平勾配を引き渡し、勾配なりに茅負上端幅B’~④と取り、垂直に上げるとC’となりB’~C’と同じ角度となり、上端留めが求められます。B’から茅負成の幅を①と取り①‐②‐③‐A’と矩をまくと茅負A~A’の点と同様になり、向こう留め角度A’~B’の角度となります。

4.さしがね使いでは、地の間1尺と垂木の実長(11.180延び)を二分の一矩にして5寸と5.59となり、長いほうで墨をすれば配付け垂木の角度、短い5寸で墨をすれば茅負上端留めとなります。

5.向こう留めのさしがね使いは、垂木の実長(11.180)と勾配5で向こう留めとなります。1尺を基本とした場合は、向こう留めは中勾の勾配となり1尺と中勾(4.472)となり同角度となります。

第2図

田子式規矩法大和流六代目
棟梁田子和則
月刊住宅ジャーナル 2016年8月号(VOL93)に掲載

第10回 未来に伝えたいさしがねの技

田子家規矩術の伝承
早いもので連載を始めてもう10回目になります。毎年お盆には前橋市日輪寺町の田子家代々のお墓参りに行きますが、これを機に田子家代々で伝承して参りました規矩術についてお話ししたいと思います。田子家代々は大工の棟梁であり、初代田子富蔵から私六代目田子和則まで、どの様にさしがねの技(規矩術)が伝承されてきたか、私が父から受け継いできました知っている限りのお話をさせていただきます。おそらく初代の時代、大工は今と違って、ある意味徒弟制度であり親方、弟子の関係はたとえ親子であっても想像を絶する厳しさと、仕事に関しても地域に根付いた御店(おたな)に相当の信用がないと仕事ができなかったのではと思います。そしてやはり技術力(さしがねの技)が、当時先代が勉強された文献と、残してくれた書物を見ても要求されていたと思われます。

田子家歴代棟梁
・初代棟梁 田子富蔵 上州南勢多郡日輪寺村に生 文政4年生~慶應3年没
・二代目棟梁 田子久平 天保14年~明治39年
・三代目棟梁 田子角太郎 慶應2年~大正14年
・四代目棟梁 田子隆司 明治25年~昭和40年
・五代目棟梁 田子光一郎 大正4年~平成23年
・六代目棟梁 田子和則(筆者)

写真1、写真2は私が所蔵しています田子家歴代の棟梁から引き継いで参りました書物の一部です。初代棟梁田子富蔵から、六代目の私の所蔵もしくは書き残したものが含まれております。特に写真1の3巻の巻物は、三代目棟梁田子角太郎が学び習得した内容が詳細な図面と共に記されており、その努力の程も伝承されております。

初代棟梁 田子富蔵
先ず田子家の初代棟梁から紹介いたします。
富蔵の資料は少なく、初代が所蔵し勉強していたといわれる本と、お城に纏わる本があります。五代目(光一郎)の話によると、富蔵は藩の出入りの大工であり、絵が非常にうまい人だったと聞いております。江戸日本橋の本を所持しており、その本に富蔵が描いた絵といわれる物がたくさんあります。
また、武家雛形目録の本が数冊あり、武家の間取り、馬小屋の造りから馬の餌箱の大きさまで記された、武家に纏わる机から馬の爪切り台の寸法まで、こと細かく、武家が使う生活用品と城で使う、今でいう業務用品の寸法本、ここにはさしがねの吉寸法での割付寸法が随所にみられ、唐尺の寸法が使われているように思います。このような文献からも、お城関係の大工の仕事をしていたと推察できます。

二代目棟梁 田子久平